Blu-ray Forum → Heimkino, Hifi / Technik → Boxensysteme / Installation → Allgemeine Hilfe und Fragen zu Boxen

Heimkinoanlage ca. 500€

Gestartet: 08 Feb 2012 13:42 - 22 Antworten

#1
Geschrieben: 08 Feb 2012 13:42

HomerJS

Avatar HomerJS

user-rank
Bigscreener
Blu-ray Sammler
aktivitaet.png Aktivität:
 
Hallo zusammen!

Ich bin gerade dabei, in einem Hobbyraum ein kleines Heimkino einzurichten.
Dabei bräuchte ich jetzt nocheinmal eure Hilfe bzgl. des Tons.
Leider liegt das Budget nur bei ca. 500€, von daher bin ich am überlegen, was ich mache.
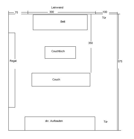
Hier erstmal ein Grundriss des Raums:
attachment.php?attachmentid=76600&stc=1&d=1328704648

vor der Tür rechts neben der Leinwand könnte auch eine Box aufgestellt werden, die wird nicht so häufig benötigt.
Ich hätte jetz spontan zu einer 2.0/2.1 Lösung tendiert, auch wenn surround natürlich eine schöne sache wäre...
equipment ist noch keines vorhanden, Gebrauchtkauf wäre auch in Ordnung.

Die Anlage wäre dann auch ausschließlich für Heimkino gedacht.
Geht man nach Neupreisen, hätte ich jetzt mal in Richtung Heco Victa 701, Teufel Ultima 30 oder Magnat Supreme 1000 geschaut... hättet ihr irgendwelche Vorschläge?

#2
Geschrieben: 08 Feb 2012 13:47

Nessy

Avatar Nessy

user-rank
Klangkünstler
Blu-ray Profi
aktivitaet.png Aktivität:
 
kommentar.png
Forenposts: 2.242
Clubposts: 321
seit 08.01.2009
display.png
LG OLED77CX9LA
anzahl.png
Blu-ray Filme:
ps3.png
PS 3 Spiele:
anzahl.png
Steelbooks:
23
anzahl.png
anzahl.png
zuletzt bewertet:
The Amazing Spider-Man
anzahl.png
Bedankte sich 100 mal.
Nessy ordnet sich neu

Ich glaub was interessant zu wissen wäre was vielleicht schon gegeben ist?

Hast du einen AV-R oder ähnliches bereits?

tht_01_170px.png
Zusammenkunft ist ein Anfang - Zusammenhalt ist ein Fortschritt - Zusammenarbeit ist der Erfolg

Fortgeschrittene & offene Multigaming Community mit eigener Infrastruktur

Company of Heroes - Blitzkrieg | DayZ | Diablo 3 | Dota 2 | League of Legends | Minecraft | Planetside 2 | World of Tanks


#3
Geschrieben: 08 Feb 2012 14:00

HomerJS

Avatar HomerJS

user-rank
Bigscreener
Blu-ray Sammler
aktivitaet.png Aktivität:
 
Zitat:
equipment ist noch keines vorhanden, Gebrauchtkauf wäre auch in Ordnung.
nein, ist noch nichts vorhanden ;)

Es müsste also alles gekauft werden, gerade beim avr war ich mir jetz aber alles andere als sicher...
#4
Geschrieben: 08 Feb 2012 15:05

std

Avatar std

user-rank
Steeljunkie
Blu-ray Papst
aktivitaet.png Aktivität:
 
Deutschland
Gelsenkirchen
kommentar.png
Forenposts: 16.959
Clubposts: 833
seit 11.02.2009
display.png
Panasonic TX-P50GW20
player.png
Panasonic DMP-BDT320
anzahl.png
Blu-ray Filme:
anzahl.png
Steelbooks:
59
anzahl.png
anzahl.png
anzahl.png
Bedankte sich 2689 mal.


naja

500€ für Lautsprecher UND AVR wird etwas knapp
Wäre erstmal mit Stereo anfangen und dann nach und nach aufbauen eine Alternative?
#5
Geschrieben: 08 Feb 2012 15:08

niks

Avatar niks

user-rank
Blu-ray Starter
aktivitaet.png Aktivität:
 
kommentar.png
Forenposts: 15
Clubposts: 4
seit 08.02.2012


Zitat:
500€ für Lautsprecher UND AVR wird etwas knapp
ich muss stefan zustimmen, du solltest klein anfangen und wachsen, wie eine pflanze, vo der kannst du auch nicht erwarten, das sie innerhalb einer stunde früchte trägt
#6
Geschrieben: 08 Feb 2012 15:17

HomerJS

Avatar HomerJS

user-rank
Bigscreener
Blu-ray Sammler
aktivitaet.png Aktivität:
 
danke schonmal für die schnellen Antworten!
dass es erstmal auf 2.0/stereo hinauslaufen wird, hatte ich schon eingeplant, s.o.... es ist jedoch fraglich, ob dann noch etwas nachgerüstet wird (das system ist nicht für mich, sondern soll in meinem Elternhaus stehen), wahrscheinlicher ist, dass es dann auch bei stereo bleibt.

da das Budget ja auch für eine schöne Stereo-Anlage nicht gerade üppig ist, wollte ich mich einfach mal nach vorschlägen von euch erkundigen, was denn empfehlenswert wäre und das dann evtl mal probehören...

was mich auch interessieren würde, ist ob der platz für standlautsprecher überhaupt ausreicht, oder ob ich hier (auch in anbetracht des preises) besser mit hochwertigeren Kompaktboxen fahre?
#7
Geschrieben: 08 Feb 2012 15:20

std

Avatar std

user-rank
Steeljunkie
Blu-ray Papst
aktivitaet.png Aktivität:
 
Deutschland
Gelsenkirchen
kommentar.png
Forenposts: 16.959
Clubposts: 833
seit 11.02.2009
display.png
Panasonic TX-P50GW20
player.png
Panasonic DMP-BDT320
anzahl.png
Blu-ray Filme:
anzahl.png
Steelbooks:
59
anzahl.png
anzahl.png
anzahl.png
Bedankte sich 2689 mal.


wie viel Platz ist denn vom Bett bis zu der jeweiligen Tür auf beiden Seiten? In die Ecken würd ich die Lautsprecher nicht stellen
Wie hoch ist Unterkante Leinwand?
#8
Geschrieben: 08 Feb 2012 15:31

HomerJS

Avatar HomerJS

user-rank
Bigscreener
Blu-ray Sammler
aktivitaet.png Aktivität:
 
Die Leinwand hängt noch nicht - das ganze ist erst im Planungsstadium ;)
Die Unterkante LW sollte dann bei ca. 50-60 cm vom boden aus sein.
ca. 1,30m sollte der raum zwischen bett und wand auf beiden seiten jeweils betragen. das bett selbst ist 35cm hoch und 68cm breit.

was ich oben noch vergessen hatte: Raumhöhe ist 2,5m, das ganze ist ein mit parkettboden ausgelegter Kellerraum.
#9
Geschrieben: 08 Feb 2012 16:18

Gast

Was macht denn ein Bett in deinem Hobby-Raum? ;) Ein Schelm, der Frivoles dabei denkt. :D

Schön, dass auch ein Gebrauchtkauf für dich in Frage kommt. So lässt sich auch bei deinem Budget eine Konstellation finden die zufriedenstellen wird.

Ungeachtet welcher Lautsprecher, solltest du einen AV-Receiver + vorerst ein Stereo-System vorziehen, und dann nach und nach eine Surround-Kulisse aufrüsten.

Lebst du nachhaltig wertiger mit.
Geschrieben: 08 Feb 2012 16:24

HomerJS

Avatar HomerJS

user-rank
Bigscreener
Blu-ray Sammler
aktivitaet.png Aktivität:
 
Zitat:
Zitat von Klinke26
Was macht denn ein Bett in deinem Hobby-Raum? ;) Ein Schelm, der Frivoles dabei denkt. :D
*hust* irgendwo muss man seine Gäste ja einquartieren... :p

Zitat:
Zitat von Klinke26
Schön, dass auch ein Gebrauchtkauf für dich in Frage kommt. So lässt sich auch bei deinem Budget eine Konstellation finden die zufriedenstellen wird.
was wären denn dann explizit Geräte, nach denen man sich gezielt umschauen könnte/sollte?


Beitrag Kommentieren

Noch 380 Zeichen

Blu-ray Forum → Heimkino, Hifi / Technik → Boxensysteme / Installation → Allgemeine Hilfe und Fragen zu Boxen

Es sind 99 Benutzer und 2529 Gäste online.