Blu-ray Forum → Heimkino, Hifi / Technik → Fernseher, Beamer / Peripherie → Review: Präsentation der Userheimkinos

Frozt´s Cinema

Gestartet: 04 Jan 2013 15:22 - 14 Antworten

#1
Geschrieben: 04 Jan 2013 15:22

Frozt

Avatar Frozt

user-rank
Movieprops Collector
Blu-ray Fan
fsk-geprueft
user verified
aktivitaet.png Aktivität:
 
kommentar.png
Forenposts: 19
Clubposts: 778
seit 27.12.2012
display.png
Samsung PS-59D550
player.png
Sony PlayStation 3 Slim
anzahl.png
Blu-ray Filme:
anzahl.png
Steelbooks:
821
Steel-Status:
anzahl.png
Mediabooks:
1
anzahl.png
Bedankte sich 15 mal.


Hallo Zusammen,
da das mein erster Thread hier im Forum ist möchte ich mich erst mal Vorstellen.
Ich heiße Daniel, bin 33 Jahre alt und komme aus den Norden Deutschlands.
Vor 5 Jahren hab ich mein Eigenheim erworben. Und habe Anfang 2010 bis Ende 2011 mein Keller ausgebaut. Und dabei hatte ich mir auch gleich ein Raum für mich reserviert, den ich dann auch demensprechend umgebaut habe . Nur leider bin ich nicht mehr ganz so zufrieden mit dem Raum. Den nachdem man hier so einige HK bestaunen durfte kommt bei mir nur noch eins in Frage.

ICH WILL AUCH!:love:
Da das Projekt erst Mitte des Jahres losgehen wird, muss nämlich mein aktuelles Projekt noch beenden, eröffne ich diesen Thread um mir Ideen und Tipps und Tricks einzuholen von denjenigen die das alles schon hinter sich haben.


Kommen wir zu den Räumlichkeiten.
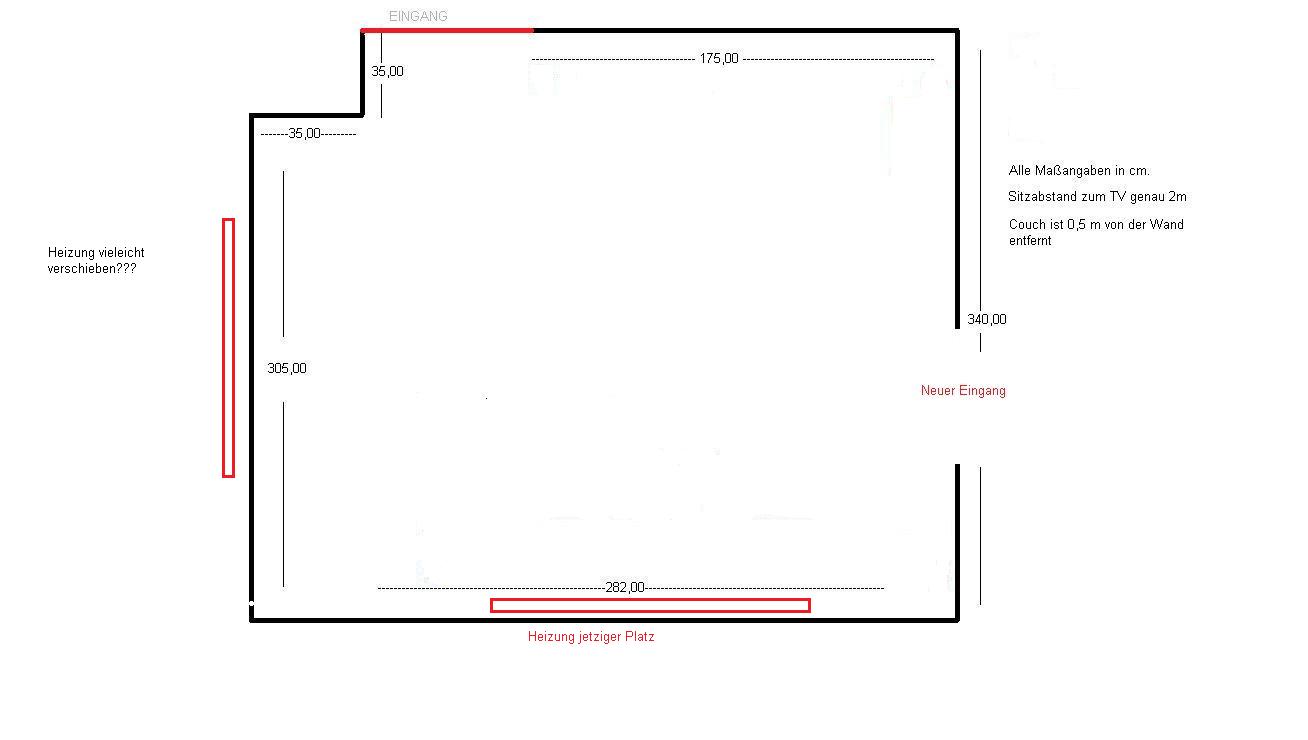
Mein Raum ist nicht sehr Groß wie ihr bei der Skizze nachschauen könnt. Dennoch würde ich gerne ein kleines HK draus machen. Momentan ist das so ,das ich ein 59 Zoll TV da hängen habe aber der ist mir irgendwie nicht genug. Das gleiche gilt auch für meine Concept 400 Anlage von Teufel.
Also möchte ich mir ein Beamer mit LW gönnen. Ob das alles Sinn macht bei so einem kleinen Raum,
ist natürlich so eine Frage, die mir sicherlich einige Beantworten können.


Zur Technik.
Muss alles neu erworben werden. Das heißt ich fang bei Null an. Dafür bräuchte ich gerne auch Vorschläge was man sich den holen könnte.


Budget:
Also ich schätze , ich werde so bis Mitte des Jahres 3000€ zusammengespart haben.
Dieses gesparte Geld soll aber nur für die Technik sein. Dachte mir aber das ich mir von diesem Geld erst mal Beamer und LW kaufe. Den Rest dann langsam nach und nach.Materielkosten für den Raumumbau finanzier ich ohne dieses Geld.


Kommen wir wieder zu den Räumlichkeiten.
Wie aus den Skizzen zu ersehen liegt die Tür sehr ungünstig, habe vor sie dann zu versetzen. Sprich alte zu neuer Eingang dann Seitlich im Raum.
Am meisten bedenken macht mir die Schallisolierung im Raum. Da ich ein Reihenmittenhaus habe.
Sollen sich meine Nachbarn nicht zu Sehr von meinem Hobby gestört fühlen.
Nur Schallisolierung ist so eine Sache. Denn der Raum ist nicht gerade breit und dazu kommt noch das ich nur eine Decken Höhe von 1,92m habe.:sad:


Momentan ist das so das falls ich aufdrehe man zwar kaum was im Erdgeschoss hört aber dafür vibrirt der ganze Fußboden im Raum über meinem zukünftigen HK..
Frage natürlich was kann ich dagegen tun?:rolleyes:

Ich wär euch sehr Dankbar über eure Tipps. Natürlich auch darüber was ihr davon halltet in so einem Raum ein HK zu machen. Freu mich schon auf eure Beiträge.
Gruß Daniel

Gruß Daniel


Sadness.png


#2
Geschrieben: 04 Jan 2013 23:25

Blutobi

Avatar Blutobi

user-rank
Steeljunkie
Blu-ray Papst
fsk-geprueft
user verified
aktivitaet.png Aktivität:
 
Servus Daniel,
Da dein Raum doch sehr begrenzt ist würde ich eine LW von 2-2,2m breite vorschlagen.
Da du auch seitlich etwas luft für die LS brauchst .Wie ist es mit Belüftung des Raumes oder Heizung ? 1,90 Raumhöhe ist auch nicht das gelbe vom Ei :( da könntest du zb. Noppenschaumstoff auf die Decke kleben .
Der Abstand Beamer /LW beträgt auch nur ca.2,8m .... Würde mal mit den Projektionsrechner schauen was für ein Beamer für dich in frage kommt.
caey7slpd21vv5oix.gif
HK ist aber auch auf kleinsten Platz möglich
https://bluray-disc.de/forum/praesentation-der-userheimkinos/59559-synci-baubericht-meiner-dunkelkammer.html ;)
Mit freundlichen Grüßen

Tobi
Redlounge Betreiber
tttt.jpg
#3
Geschrieben: 05 Jan 2013 13:58

Frozt

Avatar Frozt

user-rank
Movieprops Collector
Blu-ray Fan
fsk-geprueft
user verified
aktivitaet.png Aktivität:
 
kommentar.png
Forenposts: 19
Clubposts: 778
seit 27.12.2012
display.png
Samsung PS-59D550
player.png
Sony PlayStation 3 Slim
anzahl.png
Blu-ray Filme:
anzahl.png
Steelbooks:
821
Steel-Status:
anzahl.png
Mediabooks:
1
anzahl.png
Bedankte sich 15 mal.


Hallo Tobi, erstmal Danke für deine Beteiligung:rofl:

Hab total vergessen die Heizung einzuzeichnen:eek:
Reiche das hiermit nach. Also wenn ich das so machen würde wie du mir das Vorschlegst müsste ich die Heizung , so wie in der neuen Skizze versetzen.
Macht der mehr aufwand Sinn oder lässt man den Raum in der aufstellung so wie er jetzt ist? Statt es um 180 grad zu drehn?

Fenster gibt es keine. Hab mir das so gedacht, das bevor ich den alten Eingang dicht mache Belüftungsrohr einarbeite. Wo z.B. der Lüfter dann im nebenraum sitzt. Das gleiche dann Neben dem neuen Eingang.
Wie finds die Idee?

Kenn mich ja mit diesen Noppenschaumstoff nicht aus. Aber irgendwie kann ich mir nicht vorstellen das das dann an der Decke gut aussieht.
Oder Irre ich mich jetzt da?
Könnte die Decke ja wieder abreissen. Hab als ich sie abgehangen habe ja nicht vor gehabt ein HK zumachen,daher auch nicht gedämmt.
Wenn das meine Frau jetzt lesen würde mit Decke abreissen,würde sie mir den Kopf abreissen:p

Hab auch nochmal 2 Fotos vom jetzt zustand beigefügt.

Gruß Daniel


Sadness.png


#4
Geschrieben: 05 Jan 2013 14:02

Wolfschädel

Avatar Wolfschädel

user-rank
Movieprops Collector
Blu-ray Papst
fsk-geprueft
user verified
aktivitaet.png Aktivität:
 
Deutschland
Waldems
kommentar.png
Forenposts: 2.831
Clubposts: 9.564
seit 11.06.2009
display.png
LG
beamer.png
Mitsubishi HC-9000D
player.png
Denon DVD-2500BT
anzahl.png
Blu-ray Filme:
ps4.png
PS 4 Spiele:
anzahl.png
Steelbooks:
13
anzahl.png
Mediabooks:
1
anzahl.png
anzahl.png
anzahl.png
Bedankte sich 2318 mal.
Wolfschädel hat einen neuen Hobbyraum

wo ein Wille ist,ist auch ein Heimkino ;) Den Traum vom eigenen Heimkino kann sich jeder erfüllen,der eine kleine Ecke für dieses Hobby bereitstellen kann."Optimal" braucht es nicht um auch dort dann sehr viel spaß und freude zu haben,wenn dann die ersten Filme im eigenen ungesetzten Projekt genossen werden :)
Viel spaß und Erfolg bei der Umsetzung.
Gruß Karsten
2.jpg
Premium Format aus Überzeugung
#5
Geschrieben: 05 Jan 2013 14:18

Frozt

Avatar Frozt

user-rank
Movieprops Collector
Blu-ray Fan
fsk-geprueft
user verified
aktivitaet.png Aktivität:
 
kommentar.png
Forenposts: 19
Clubposts: 778
seit 27.12.2012
display.png
Samsung PS-59D550
player.png
Sony PlayStation 3 Slim
anzahl.png
Blu-ray Filme:
anzahl.png
Steelbooks:
821
Steel-Status:
anzahl.png
Mediabooks:
1
anzahl.png
Bedankte sich 15 mal.


Danke dir Karsten.:rofl:
Hab mir gerade den Thread von synci durchgelesen. Respekt! Und ich dachte Ich hätte Platz Probleme.Tolle Umsetzung.:thumb:
Gruß Daniel


Sadness.png


#6
Geschrieben: 05 Jan 2013 14:38

Blutobi

Avatar Blutobi

user-rank
Steeljunkie
Blu-ray Papst
fsk-geprueft
user verified
aktivitaet.png Aktivität:
 
Sag ich doch ;) da bekommen wir schon ein HK das dir Spaß macht rein :thumb:
Mit freundlichen Grüßen

Tobi
Redlounge Betreiber
tttt.jpg
#7
Geschrieben: 08 Jan 2013 10:27

arteck

Avatar arteck

user-rank
Blu-ray Starter
aktivitaet.png Aktivität:
 
schau dir mal meine Cinema an.. mein Raum ist 3x4..
deckenhöhe ca. 2,30 ich hab die Decke mit Molton verkleidet.. zwischen den Latten sind Styropor Platten..
(also ich weiss nicht was die Leute immer mit Molton "fusselt" haben.. bei mir fusseln da nix...)

ok ich hab keinen Beamer...

aber wo ein Wille, ist auch ein Weg


p.s: du wirst Probleme mit dem Sub haben wenn du den da stehen lässt... da ist die Lösung von Blutobi besser mit den 2 sub's
#8
Geschrieben: 08 Jan 2013 10:54

arteck

Avatar arteck

user-rank
Blu-ray Starter
aktivitaet.png Aktivität:
 
mach dir paar Gedanken wo die Steckdosen kommen und wohin mit den Kabeln....
#9
Geschrieben: 08 Jan 2013 11:37

Frozt

Avatar Frozt

user-rank
Movieprops Collector
Blu-ray Fan
fsk-geprueft
user verified
aktivitaet.png Aktivität:
 
kommentar.png
Forenposts: 19
Clubposts: 778
seit 27.12.2012
display.png
Samsung PS-59D550
player.png
Sony PlayStation 3 Slim
anzahl.png
Blu-ray Filme:
anzahl.png
Steelbooks:
821
Steel-Status:
anzahl.png
Mediabooks:
1
anzahl.png
Bedankte sich 15 mal.


Hi arteck,
Bin in den letzten Tagen nur an bauberichte durchlesen und Ideen sammeln.
Momentan bin ich zu den Entschluss gekommen das ich die Variante mit den 2 subs von blutobi wohl in Angriff nehme.
Wie gesagt dafür muss ich ja Tür und Heizung versetzen.
Mit der Decke Kämpfe ich gerade noch mit meinem gewissen, da ich sie ja schon abgesenkt habe. Weiß ich das ich sie noch ein Tick höher machen könnte. Da ich sie als ich sie gebaut habe an die anderen Räume angeglichen habe.
Für die Steckdosen und die Geräte hab ich auch eine Idee. Bin aber die ganze zeit am überlegen ob ich ein 7.2 System vorbereite oder es in diesem Raum keinen Sinn macht.
Würde ja wichtig Platz zur Leinwand verlieren da ich ja 0,7 m von den hinteren Boxen entfernt sein sollte. Dementsprechend müsste meine Leinwand kleiner ausfallen und das möchte ich auf keinen fall.
Aber auch die Platzierung der hinteren Boxen wie Tobi gezeichnet hat macht mir sorgen. Da die Boxen ja genau neben mir stehen würden wenn ich sitze, wenn nicht sogar ein Tick weiter vor.
Ich Kämpfe echt hier in der Planung um jeden cm.:pray:
Gruß Daniel


Sadness.png


Geschrieben: 13 Jan 2013 10:32

Blutobi

Avatar Blutobi

user-rank
Steeljunkie
Blu-ray Papst
fsk-geprueft
user verified
aktivitaet.png Aktivität:
 
Servus,
Ich würde mal sagen eine gute 5.2 LS Aufstellung schlägt jede nicht so optimale 7.2 ;)Anlage.
Würde an deiner stelle die seitlichen LS (Direktstrahler) zur Couch eindrehen . Du könntest auch einen Kanal auf der hinteren Wand / Decke montieren 6.2 ....
Mit freundlichen Grüßen

Tobi
Redlounge Betreiber
tttt.jpg


Beitrag Kommentieren

Noch 380 Zeichen

Blu-ray Forum → Heimkino, Hifi / Technik → Fernseher, Beamer / Peripherie → Review: Präsentation der Userheimkinos

Es sind 81 Benutzer und 1438 Gäste online.