Blu-ray Forum → Heimkino, Hifi / Technik → Fernseher, Beamer / Peripherie → Review: Präsentation der Userheimkinos

[Kreaf] Heimkinoplanung

Gestartet: 13 Nov 2013 21:29 - 37 Antworten

Geschrieben: 14 Nov 2013 19:00

Kreaf

Avatar Kreaf

user-rank
Blu-ray Starter
fsk-geprueft
user verified
aktivitaet.png Aktivität:
 
So ich habe mal noch ein bisschen mit der Planungssoftware rumgespielt und die eindeutige Aussage meiner Frau war:
"Die Westwand wird nicht verlängert, da geht ja die ganze Offenheit verloren."

Von daher wird das so wohl leider nix.

Hier mal der Entwurf mit dem Fernseher an der Südwand:

attachment.php?attachmentid=139530&stc=1&d=1384450953

Und das Ganze als 3D Ansicht:

attachment.php?attachmentid=139538&stc=1&d=1384450953


Als neuen Favoriten haben wir jetzt den Fernseher mal "in die Ecke verbannt".

attachment.php?attachmentid=139532&stc=1&d=1384450953

Und als 3D Ansicht:

attachment.php?attachmentid=139534&stc=1&d=1384450953


Evtl. den Fernseher doch an die Südwand zwischen Wohn- und Esszimmer per schwenkbarer Halterung, so das er in Richtung Wohnzimmer und Richtung Esszimmer schwenkbar ist...

attachment.php?attachmentid=139536&stc=1&d=1384451571

Was meint ihr dazu?

Geschrieben: 14 Nov 2013 19:04

BTTony

Avatar BTTony

user-rank
Serientäter
Blu-ray Profi
aktivitaet.png Aktivität:
 
Deutschland
Bocholt
kommentar.png
Forenposts: 2.233
Clubposts: 493
seit 10.12.2011
display.png
LG 55LM640S
beamer.png
Epson EH-TW6700
player.png
LG BD670
anzahl.png
Blu-ray Filme:
ps4.png
PS 4 Spiele:
anzahl.png
anzahl.png
zuletzt bewertet:
Swiss Army Man
anzahl.png
Bedankte sich 495 mal.


Erstmal: Schönes Haus habt ihr. Wenn die Proportionen zutreffen, habt ihr richtig tolle Fensterflächen. Da würde ich mir nichts zustellen.

Hilft nur eins: an der Südwand eine Leinwand runterlassen ;)
Geschrieben: 14 Nov 2013 19:25

Kreaf

Avatar Kreaf

user-rank
Blu-ray Starter
fsk-geprueft
user verified
aktivitaet.png Aktivität:
 
Die Proportionen sind 1:1 aus dem Plan entnommen, der Fernseher, die Boxen etc. habe ich mit den richtigen Maßen versehen, von daher, ja das passt so.

Das mit der Leinwand ist der längerfristige Plan, leider reicht nach dem Hauskauf das Geld nicht mehr um da noch einen anständigen Beamer + Leinwand zu kaufen.
Geschrieben: 14 Nov 2013 21:17

Crazy-Horse

Avatar Crazy-Horse

user-rank
Blu-ray Profi
aktivitaet.png Aktivität:
 
Ich würde das Sofe wie oben auf der ersten Skitze aufstellen, so kann man auch schön Musik hören und dabei eine tolles Aussicht genießen.

Nur ich würde es nicht mit dem Arsch an er Wand parken, damit zum einen dahinter herlaufen kann in meinen Technikraum, zum anderen damit ich die Rears noch gescheit nach hinten bekommen kann, denn bei der Aufstellung mach 7.x für mich keinen Sinn.

Lieber gutes 5.x als schlechtes 7..

Zudem kannst du dann auch noch eine Liga höeher einsteigen, da du ein Paar weniger kaufen musst.

Bei dem offenen Raum, wirst du eh richtig Druck brauchen was die Subwoofer angeht, da würde sich ein zweiter oder ein extra großer großer gut machen.
Wichtiges zum Lautsprecherkauf!
Auch Schrott kann teuer sein.
Wer billig kauft, kauft zweimal.
Scheiß Aufstellung = scheiß Sound!
Geschrieben: 14 Nov 2013 23:12

flash77

Avatar flash77

user-rank
Schwarzseher
Blu-ray Guru
fsk-geprueft
user verified
aktivitaet.png Aktivität:
 
Deutschland
Aschaffenburg
kommentar.png
Forenposts: 19.372
Clubposts: 3.207
seit 20.01.2008
display.png
LG OLED83C17
beamer.png
Sony VPL-VW270
player.png
Pioneer UDP-LX500
anzahl.png
Blu-ray Filme:
ps3.png
PS 3 Spiele:
ps4.png
PS 4 Spiele:
ps5.png
PS 5 Spiele:
anzahl.png
Steelbooks:
338
anzahl.png
Mediabooks:
10
anzahl.png
anzahl.png
zuletzt bewertet:
Southpaw (2015)
anzahl.png
Bedankte sich 7123 mal.
flash77 chillt im FlashplexX

Ich würde auch Variante 1 bevorzugen... Zwar ärgerlich, dass die Fenster zugestellt werden - aber so passts imho am besten!
SignatureImage_414.jpg
LG OLED83C17 • Sony VPL-VW270 • Denon AVR-X4400H • Pioneer UDP-LX500 • Apple TV 4K • Intel NUC @Kodi • PlayStation 5 • Dreambox DM800 • Canton Vento + 2x Arendal 1723 Subwoofer 1 (7.2.2)
Geschrieben: 16 Nov 2013 11:06

Kreaf

Avatar Kreaf

user-rank
Blu-ray Starter
fsk-geprueft
user verified
aktivitaet.png Aktivität:
 
Ja, rein von der Ausrichtung und der Boxenaufstellung gebe ich euch recht.
Es bleibt die Frage, wie könnte man den Fernseher aufhängen, so dass man ihn bei nicht gebrauch an die Westwand oder die Ostwand "schieben" / verstauen kann...

Sowas in der Art vielleicht: Hängeschienensystem
Geschrieben: 18 Nov 2013 18:13

Kreaf

Avatar Kreaf

user-rank
Blu-ray Starter
fsk-geprueft
user verified
aktivitaet.png Aktivität:
 
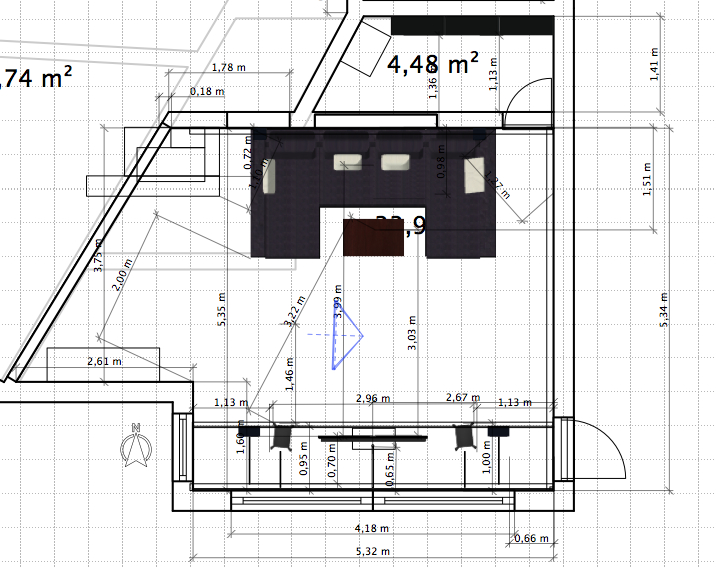
Auf dem Schienensystem basierend habe ich jetzt mal eine Skizze erstellt, wie es nachher aussehen könnte.

Als Plan:

attachment.php?attachmentid=140063&stc=1&d=1384794515


Als 3d Ansicht:

attachment.php?attachmentid=140061&stc=1&d=1384794515

Logischerweise werde ich nicht zwei Fernseher reinhängen, an der Wand ist die Park- und einfaches TV-Programm-Position. Vor dem Fenster Film Position.

Dank der abgehängten Decke sieht man nachher die Kette für die Kabel nicht mehr, kann die Kante mit LEDs beleuchten und in die Decke Spots einsetzten.

Noch dazu kann später eine Leinwand integriert werden.

Was meint ihr dazu?

Geschrieben: 19 Nov 2013 18:55

Crazy-Horse

Avatar Crazy-Horse

user-rank
Blu-ray Profi
aktivitaet.png Aktivität:
 
Ich würde mir den Aufwand sparen, da ich auch bei TV schon die LS verwende und nicht die TV Dosen LS.
Wichtiges zum Lautsprecherkauf!
Auch Schrott kann teuer sein.
Wer billig kauft, kauft zweimal.
Scheiß Aufstellung = scheiß Sound!
Geschrieben: 19 Nov 2013 21:14

Kreaf

Avatar Kreaf

user-rank
Blu-ray Starter
fsk-geprueft
user verified
aktivitaet.png Aktivität:
 
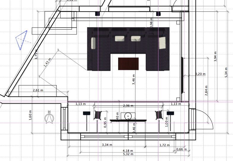
Für normales TV reichen uns die "Dosen LS", kommt zum Großteil eh nur Schmuh.
Zumal der Aufwand ja für die Aussicht und die Lichtausbeute und nicht für die "Park-TV-Position" getrieben wird.


attachment.php?attachmentid=140216&stc=1&d=1384891844

Geschrieben: 19 Nov 2013 22:37

Crazy-Horse

Avatar Crazy-Horse

user-rank
Blu-ray Profi
aktivitaet.png Aktivität:
 
Na wenn ich schon mal schaue, dann auch mit bester Tonqulität, ich sitze ja eh selten davor und wenn dann will ich mir diese Quäken nicht antun.

Schalte bei Live TV in der Werbung immer auf Radio um, so kann man schön entspannen und muss sich diesen Werbestuss nicht antun.
Wenn ich im Wohnzimmer bin, ist die Anlage an, wenn auch nur wie jetzt, TV ist schon aus, ich noch ein wenig abhänge und Radio laufen lassen.

Und doch muss ich immer wieder lauter drehen.

Mit einer Wandhaltung kannst du den am dem schmalen Träger nicht befestigen?

Ich würde dann dort mein LowBoard aufstellen und fertig.

Den ständig rum zu schwenken, das stelle ich mir von den Kabel her ein wenig schwierig vor, vor allem ist HDMI ja nicht gerade für seine Sötrunsunempfindlichkeit berühmt, vor allem ist 15m die maximale Länge die man einsetzen kann ohne Probleme zu befürchtet.

Aber sonst gefällt mir das gut, die Front High würde ich weg lassen und die Rears dafür tiefer anbringen.

Wo willst du den Subwoofer oder die Subwoofer unbringen?

Wenn ich noch mal umbaue, dann kommen meine Rears auf Regalbretter die so angebracht sind, das die HTs genau so hoch sind wie bei meiner Front.
Wichtiges zum Lautsprecherkauf!
Auch Schrott kann teuer sein.
Wer billig kauft, kauft zweimal.
Scheiß Aufstellung = scheiß Sound!


Beitrag Kommentieren

Noch 380 Zeichen

Blu-ray Forum → Heimkino, Hifi / Technik → Fernseher, Beamer / Peripherie → Review: Präsentation der Userheimkinos

Es sind 19 Benutzer und 857 Gäste online.