So nach langer Zeit mal wieder etwas Neues!:)
Ich hab mir einen neuen Subwoofer gebaut. Leider hab ich nicht von
Anfang an mitfotografiert.
Mir schwirrte schon lange die Idee im Kopf herum, mir mal einen
eigenen Subwoofer zu bauen. Dabei ging es mir nur zweitrangig um
die finanzielle Ersparnis, sondern das Selbstbauen juckte mir in
den Fingern.
Also habe ich Google interviewt und immer wieder stieß ich auf
einen bestimmten Subwoofer, den selbst einige Leute aus dem
Hifi-Forum schon gebaut und für durchaus brauchbar gehalten haben.
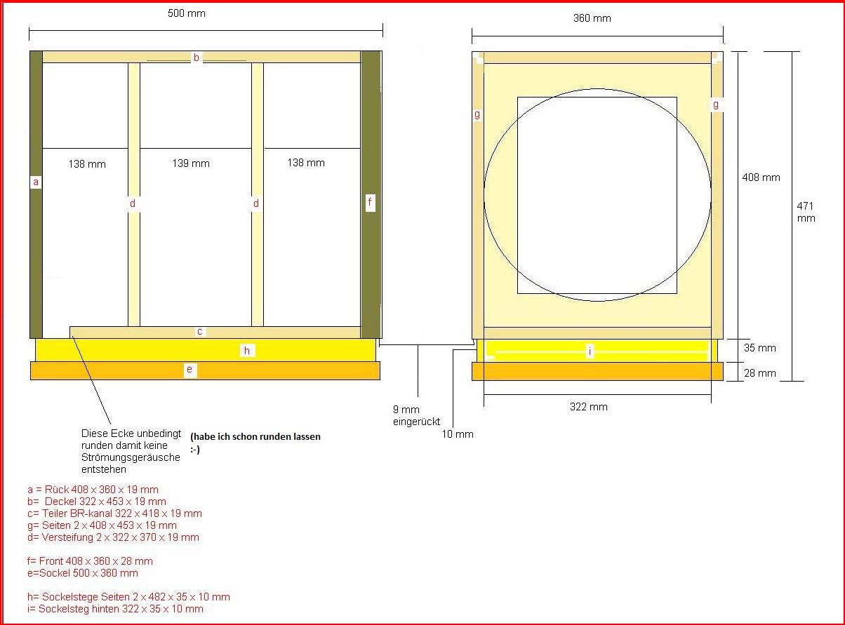
Es gibt sogar einen Bauplan mit Zuschnittmaßen für das Gehäuse,
welches wohl auf die Endstufe und den Woofer berechnet worden ist.
Dieses sieht so aus:

Die einzelnen Zuschnitte habe ich nicht fotografiert. Hier sieht
man das Verleimen des Gehäuses.

Um Strömungsgeräusche zu verhindern habe ich vorsichtshalber alle
Kanten innerhalb des Gehäuses mit der Oberfräse abgerundet und
glatt geschliffen.
Nach dem Verleimen des Gehäuses kam die undankbarste Aufgabe. Das
Abrunden der Aussenkanten ging mit der Oberfräse noch recht zügig,
das Glattschleifen der Übergänge dank fehlendem Schwingschleifer
war schon nicht mehr so schnell zu machen. Aber nach ein paar
Stunden war das auch erledigt.
Jetzt konnte es mit dem Lackieren losgehen. Auch dabei habe ich
vergessen meine Kamera zu benutzen.:( Nach 3 Schichten Farbe mit
jeweiligem Zwischenschliff konnte das Gehäuse bestückt
werden.
....und neben der Couch platziert und eingemessen werden.
Da ich heute den ganzen Tag "sturmfrei" hatte konnte ich sehr lange
mit der Einstellerei verbringen. Ich habe dazu erst das
Einmessautomatik meines Onkyo benutzt. Danach mit einem
Schallpegelmessgerät feinjustiert.
Im Anschluß kam dann als Testfilme erst The Last Stand, dann World
Invasion: Battle Los Angeles und zum Schluß Dredd 3D in den
Player.
Bis jetzt bin ich schon sehr zufrieden und die Arbeit hat sich
definitiv gelohnt.
Als Bestückung kommt übrigens ein Mivoc AWM 124 12" Woofer und ein
Mivoc AM 120 Aktivmodul zum Einsatz.
...bevor ich es vergesse....
die Gesamtkosten belaufen sich auf ca. 240€ komplett mit Holz und
Lack.